월판선과 인동선 GTX-C 노선은 기존 지하철4호선과 함께 안양권에서 교차하는 철도계획으로 관심들이 많으실듯합니다. 교통의 편의성에 의해 주거환경 개선을 기대하시는 분들과 그에 따른 부동산 가격상승 기대등 다양한 이유에 의해서겠죠.
현 안양에서는 월판선 6,8공구와 인동선 1공구에 대한 공사가 진행되고 있고, 구역에 대한 자료가 공개되어 있는데요 . 저 역시 막연하게 아 이정도쯤에 생기겠구나 생각만 했었는데 지도를 보니 보다 명확해지는 것 같습니다.
1.월판선 6공구(안양역)
우선 월판선 6공구 전체 구간에 대한 지도입니다.

월판선 6공구는 안양시 만안구 안양로 만안초등학교부터 동안구 관악로 샘모루초등학교 인근까지 구간으로 'ㄴ'자 모양의 구간입니다.
월판선노선에도 안양역이 있는데 기존 지하철 1호선 안양역과 어떻게 연게되나 했는데 월판선은 1번도로를 따라 지어지기에 같은 안양역이어도 환승하기 위해서는 좀 걸어야 할 듯 합니다.
1호선 안양역과 아래그림처럼 안양역 남단에 연결 통로가 생기고

지하통로로 기존 안양1번가 상가 중심, 지하로 월판선과 연결될 계획입니다.
지도상 월판선 안양역 출입구로 예상되는 부분을 확대해 보았습니다.



그림을 보면 대략 6개의 출입구가 예상됩니다. 출입구 인근은 안양중앙시장이 있고 NC아울렛이 있습니다. 또한 안양 1번가의 상가지역과도 붙어 있습니다.
안양은 만안구와 동안구가 지하철 1호선으로 갈라져 있는데 월판선 안양역이 들어서면 상대적으로 낙후된 만안구 지역도 개발이 될 것 같습니다.
최근에 역과는 좀 떨어져 있으나 비산대교인근에 안양천변 안양역푸르지오더샵아파트 재건축과 1번도로변 안양디오르나인오피스텔 공사가 진행중에 있습니다.
이 월판선 22년9월 ~ 26년 10월 완공예정입니다만 지속적인 기간 변동은 있을 것으로 보입니다. 빨라지기보다는 늦어지겠죠. 보상지연 및 민원등으로.
실제 공사모습은 비산동 이마트앞에 이렇습니다. 환기구 설치위치라고 합니다. 참고로 이마트앞에 월판선 역은 계획없습니다.


또 안양여고 사거리에도 공사가 진행중입니다.
2.월판선 8공구/인동선 1공구(인덕원역)

인덕원에는 현 지하철 4호선역이 있는 위치에 월판선과 인동선역이 같이 위치합니다. 향후 GTX-C 노선역까지 들어서게 되는 곳이죠
8공구는 인덕원위주이며 인덕원역을 확대하면 아래와 같습니다.

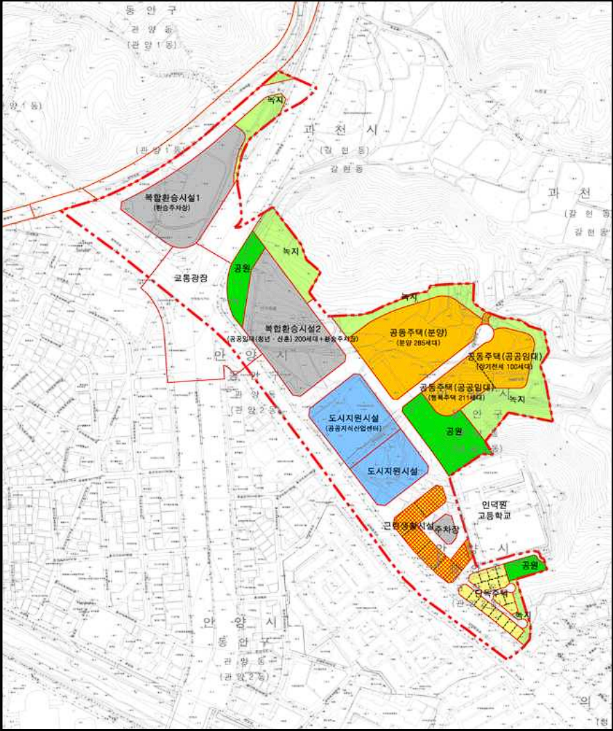
인덕원에는 향후 4개 철도가 교차하기에 안양시에서는 복합환승센터를 게획하고 있습니다. 그래서 그림에서처럼 넓게 공사가 진행될 듯합니다.
복합환승센터는 25년 12월 완공계획이면 조감도는 아래와 같습니다.


예상대로 인덕원역 왼쪽 일부와 오른쪽에 개발이 진행될 듯해요.
월판선 8공구는 동편마을 입구 지나 관양동 선사유적지 부터 판교방향으로 인덕원비빔국수 전까지로 나옵니다.
인동선 1공구는 47번국도를 따라 인덕원센트럴자이 아파트부터 과천시 갈현동 뒤편까지입니다.
인근에 과천지식정보타운이 개발진행중이고 교통의 중심지가 되기에 유동인구가 많아져 인덕원 교통 혼잡도 예상되기도 합니다.
월판선은 현재 6,8공구외에 월곶에 1공구가 진행되고 있고 상기 공사공구들 표시 관련면적이 토지보상구역입니다. 물론 지상에 관한 면적만이겠죠.
월판선 및 인동선 관련 추가 개발내용은 아래 포스팅 참고하세요.
인덕원-동탄(인동선) 복선전철 9공구 구간
인덕원-동탄간 복선전철은 현 인덕원 인근 1공구 공사와 함께 9공구 구간 공사가 진행되고 있습니다. 인동선 9공구는 용인 기흥국 서천동 서천중학교부터 영덕동의 흥덕고등학교 인근까지 구간
mong-ee.tistory.com
안양시 인덕원 주변 도시개발 사업(복합환승센터)
안양시 인덕원은 현 지하철 4호선 인덕원역이 있는, 안양시, 과천시, 의왕시가 맞닿은 곳으로 향후 월판선(월곶-판교 선), 인동선(인덕원-동탄 선), GTX-C(덕정-수원 선)가 지나가는 지역으로 알려
mong-ee.tistory.com
'생활정보' 카테고리의 다른 글
| 르노 'XM3 하이브리드' 간단 시승느낌 (2) | 2023.05.05 |
|---|---|
| '병역명문가' 가입, 혜택 총정리(국군복지포털, e-병무지갑) (0) | 2023.04.10 |
| 안양시 인덕원 주변 도시개발 사업(복합환승센터) (0) | 2023.02.20 |
| [알리익스프레스] 디지털 배터리 테스터기 (0) | 2023.01.01 |
| 난방배관 녹물제거 및 에어빼기로 열효율 올리기 (0) | 2022.12.30 |
댓글